Reece Everhot 280L R290 Heat Pump
Free worldwide shipping, tax free!
$46.00
$106.00
- Reece Everhot 280L R290 Heat Pump
- SKU: EN-1116695268
- Category: Reece
- Tag: Reece
Main Features & Information
Reece Everhot 280L R290 Heat Pump
Everhot
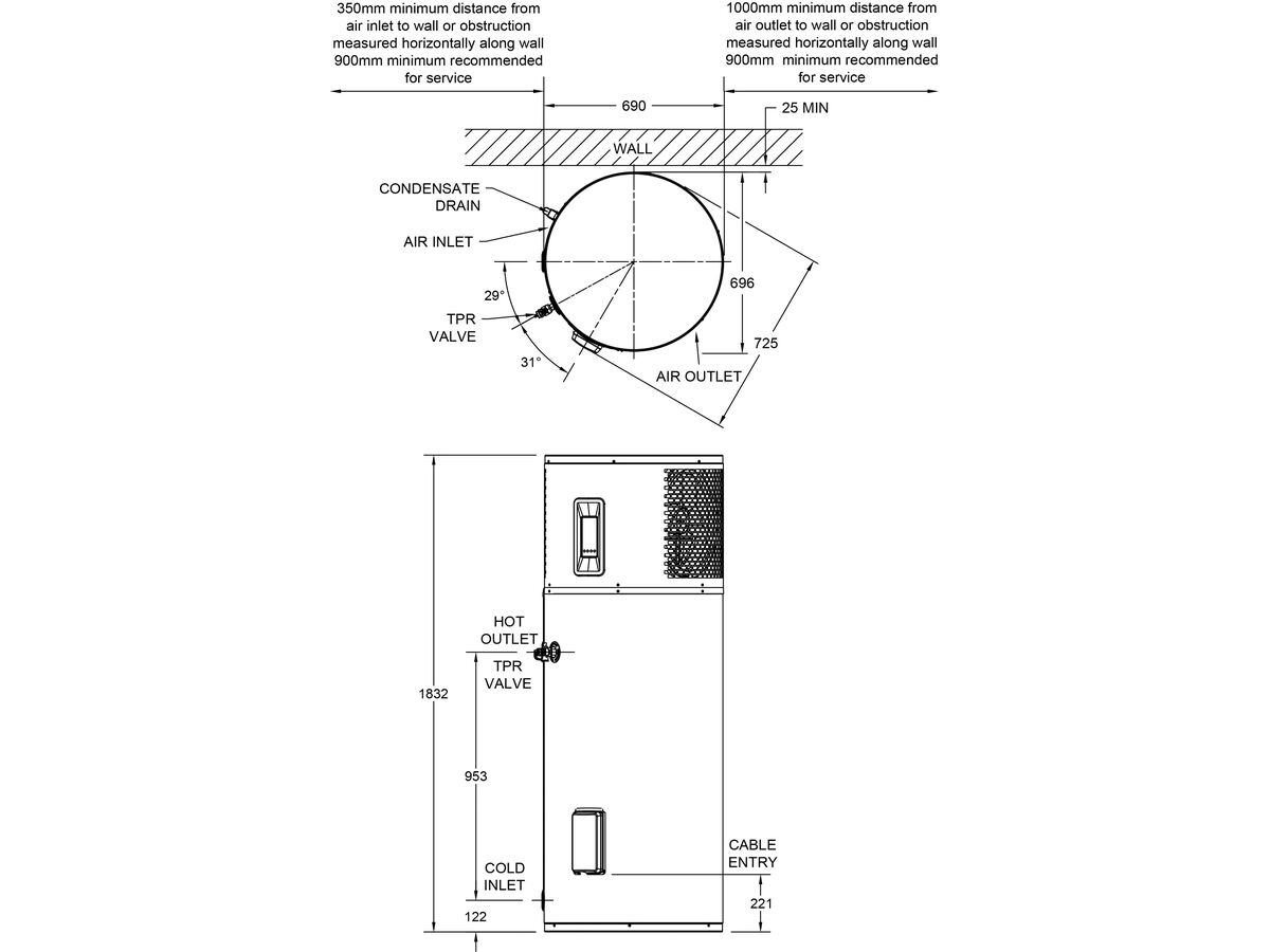
The Everhot 280 litre Heat Pump is an affordable, high efficiency heat pump that's made right here in Australia. It is an energy efficient alternative as it uses the heat from the surrounding air to heat water and provides a reliable, efficient, and sustainable way to reduce your water heating energy consumption.





